Swinomish Healing Home

Exterior of healing home renovation and lawn

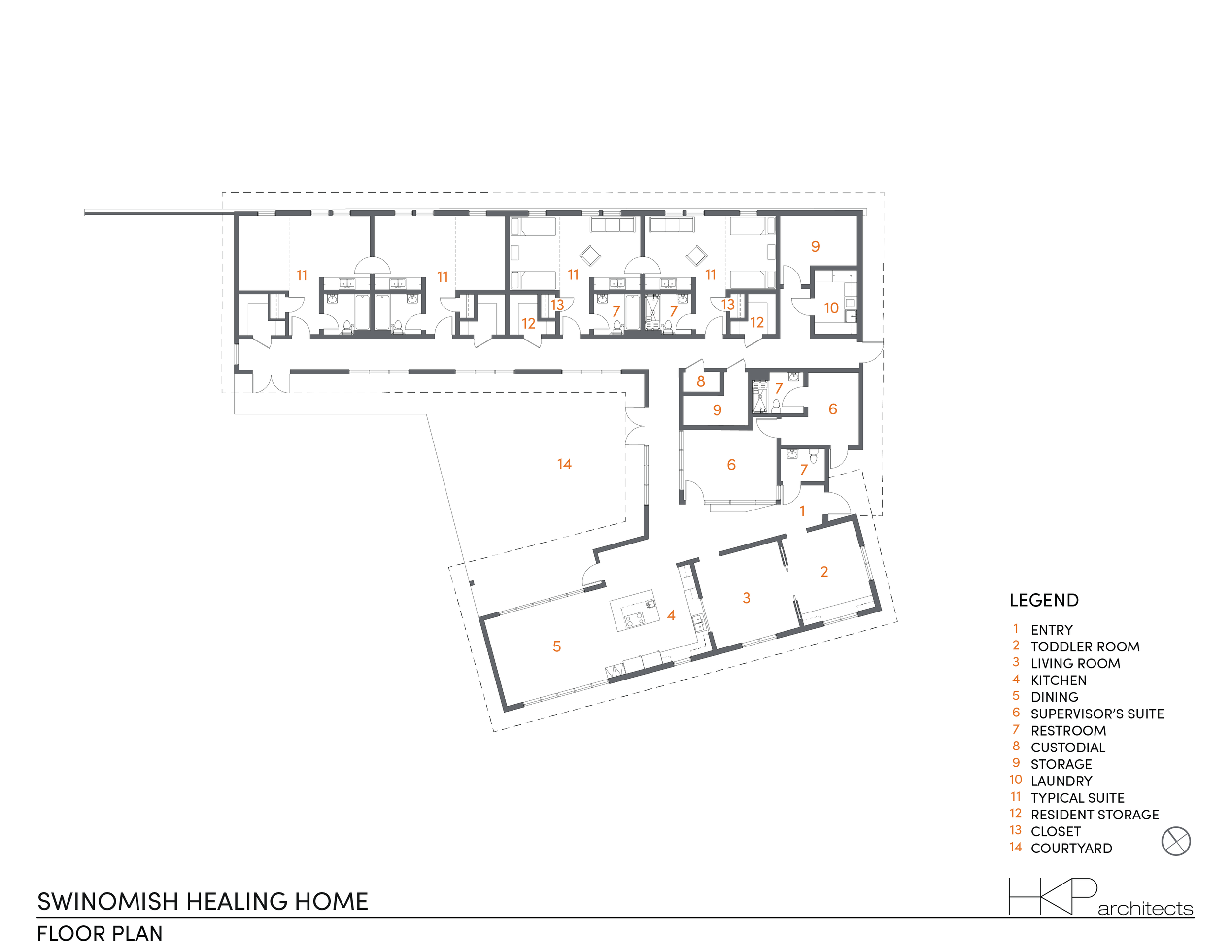
The pro­ject is a new 3,000-square-foot multi-pur­pose res­i­den­tial fa­cil­ity planned for use as a do­mes­tic vi­o­lence shel­ter, tran­si­tional hous­ing or semi-as­sisted liv­ing fa­cil­ity. Hous­ing for up to six­teen res­i­dents from in­fants to el­ders in four suites, com­mu­nal liv­ing spaces, and space for a live-in su­per­vi­sor were re­quired. Suites need to be flex­i­ble for ac­com­mo­dat­ing fam­i­lies larger than four peo­ple. Pri­vacy and se­cu­rity of res­i­dents is of ut­most con­cern and must be main­tained.

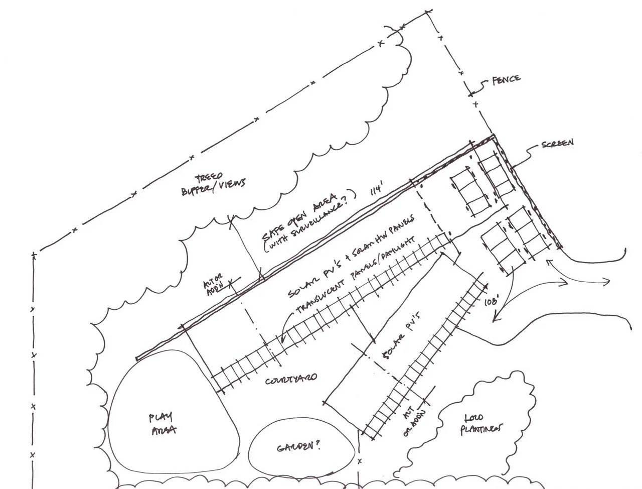
A fu­ture garage and stor­age was de­signed, but could not be built with the avail­able fund­ing. With a site grad­u­ally slop­ing from top to bot­tom, a plan was de­vel­oped with sep­a­rate pri­vate and pub­lic wings and a cen­tral “sur­veil­lance” knuckle for the res­i­dent su­per­vi­sor to keep an eye on ac­tiv­i­ties. The two wings of the build­ing cre­ate a pri­vate court­yard for res­i­dents and their fam­i­lies to gather, play, bar­beque and en­joy the out of doors. The suites have a small kitch­enette, room for two bunk beds, pri­vate bath and stor­age closet.

Hallway of healing home renovation

All rooms have in­fra­struc­ture for emer­gency call but­tons, sup­port­ing the planned fu­ture as a semi-as­sisted liv­ing fa­cil­ity. Com­mu­ni­cat­ing doors be­tween two suites al­low for fam­i­lies larger than four to oc­cupy ad­ja­cent suites. Nat­ural ma­te­ri­als, cul­tural col­ors and sig­nage in the Tribe’s na­tive lan­guage pro­mote an at­mos­phere of heal­ing and per­sonal con­nec­tion to the Tribe.

Straight­for­ward, sim­ple and durable ma­te­ri­als, nat­ural day­light­ing and ease of main­te­nance were key to the suc­cess of the pro­ject. South fac­ing roofs are po­si­tioned and de­signed to hold fu­ture so­lar pho­to­voltaic and so­lar hot wa­ter pan­els.

Previous
Previous

Head Start Burlington

Next
Next

Bellingham Technical College Campus Center