Mid-Century Modern Master Plan

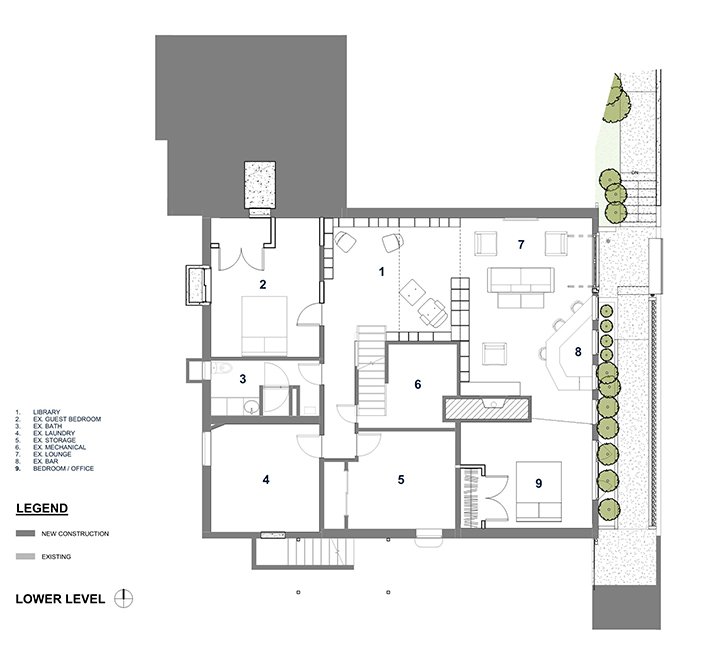
The own­ers of this Mid-Cen­tury Mod­ern home in north Seat­tle were in­ter­ested in de­vel­op­ing a mas­ter plan for re­mod­el­ing the kitchen, fam­ily room, mas­ter closet, and deck as well as the down­stairs base­ment for a li­brary, den, and of­fice space.

digital plan of home redesign

Once they had a good idea of the over­all plan, they set about to take on the pri­or­ity pro­ject, the kitchen, fam­ily room and deck.  Shown are the mas­ter plan im­ages for the en­tire house and the fin­ished pho­tos of the work that was com­pleted.

Con­trac­tor: Karl­strom & As­so­ci­ates

Case­work: Ar­chi­tec­tural Cab­i­nets, Inc.

Newly remodeled kitchen space with hardwood floors
view of living area with fireplace
view of living room
Previous
Previous

Meditation Center Feasibility Study

Next
Next

Western Washington University Science Lab Conversion